The client approached A Squared for our in-depth knowledge of Class Rules, design of steel structures and familiarity with the challenges of vessel conversion. We were awarded the contracts for the supply of design, engineering and fabrication drawing work packages for stern chutes and abandonment and recovery system for cable lay.

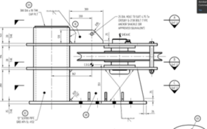
A Squared designed 2 in No. stern chutes, A&R tension handling equipment and seafastening arrangements in accordance with DNV rules for ships (2020) and DNV-ST-0378. Structures were modelled in 3d, and 2d fabrication outputs with a detailed bill of materials.

We delivered a code compliant solution that was sensitive to the existing vessel arrangement. Vessel conversion offers some unique challenges when compared to new build and the experience of the A Squared team was invaluable in delivering a design that satisfied the vessel, the yard and the owner.