The client approached A Squared for our knowledge of vessels, vessel survey and naval architecture services.
They had shortlisted several vessels for a major back deck spread which required a road-transportable, re-useable grillage for its equipment.
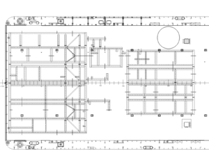
The vessel selection process can be frustrating and not all vessel information is 100% accurate. The drawings supplied by shipyards are not always fully representative of what has been delivered. As vessels age, modifications are made and sometimes records are not totally accurate.
After selecting a vessel for our client, we visited it to validate the information.

A Squared assessed available vessels making a final recommendation for the back deck spread and produced a preliminary deck layout.
We surveyed the vessel in Norway, identifying some key differences in layout, structure and power availability.
On return to the UK, A Squared designed the client a re-useable and road-transportable grillage that can be sea fastened to multiple vessels

A Squared saved the client time and money by identifying key issues during the survey which would otherwise not have been spotted.
We delivered a compliant design giving their operations flexibility.